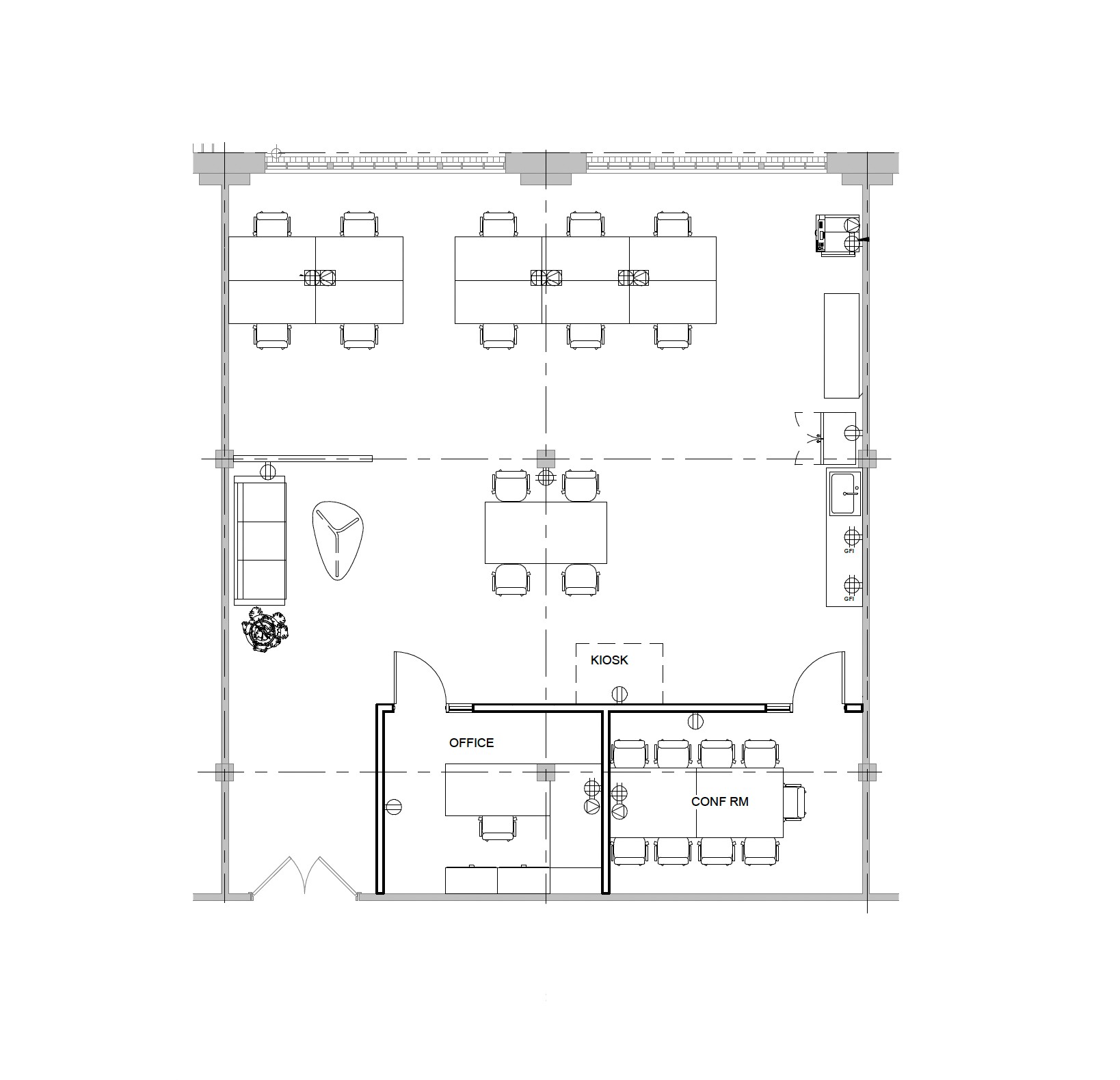
Move-in ready modern industrial office space on the third floor of St. Paul's Vandalia Tower.
  • Open office, huddle room, conference room, and kitchenette
  • Second generation modern industrial buildout
  • Large industrial windows facing courtyard
  • Free parking
  • Vibrant mix of creative co-tenants
No items found.

Estimate Your Monthly Rent

Thank you! Your submission has been received!
Oops! Something went wrong while submitting the form.
Estimated Rent Payment: $0.00 per month
Disclaimer: This rent amount is only an approximate estimate, the final amount depending on the negotiated term and other provisions of the lease contract.
Vandalia Tower

Interested? Contact Us!