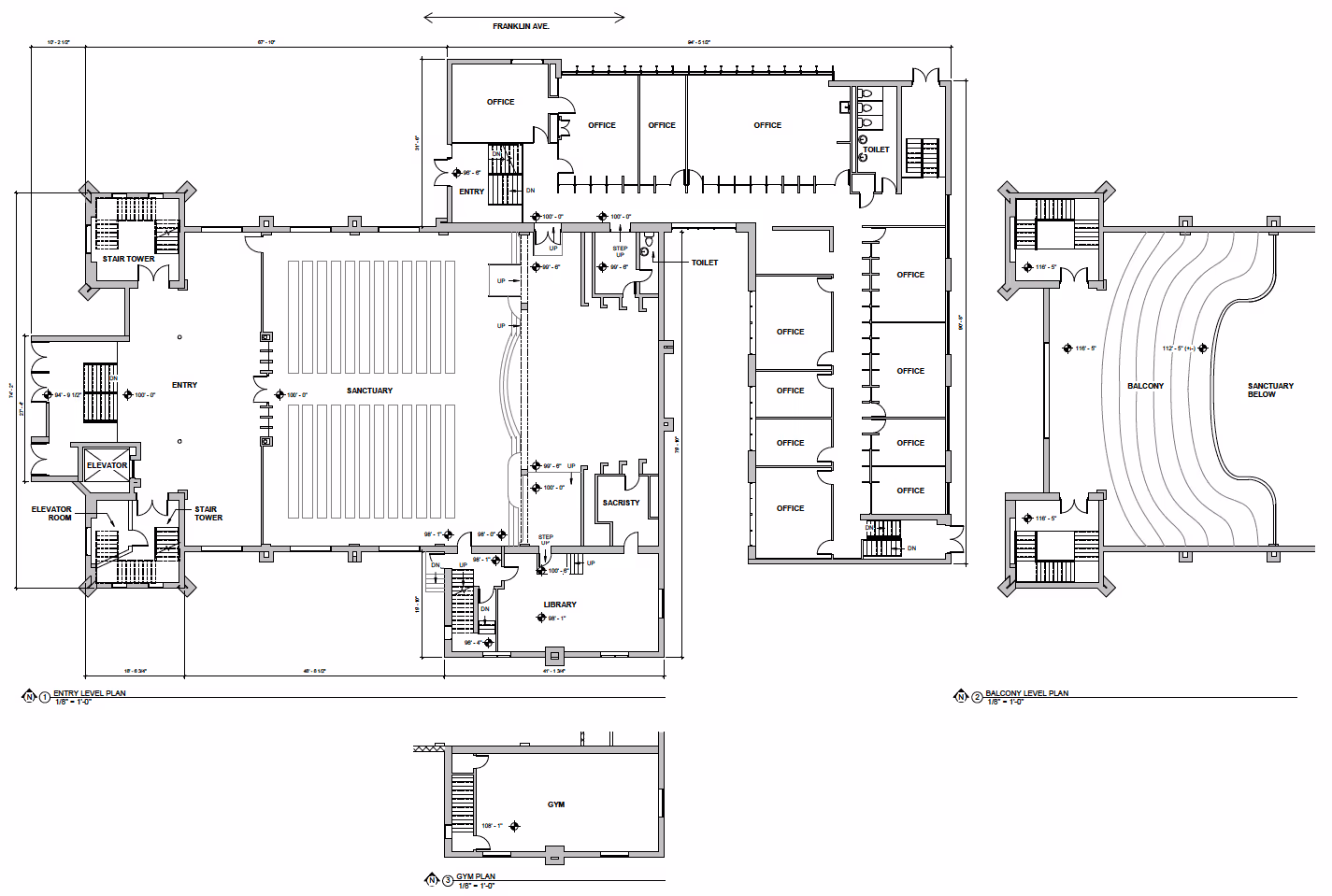
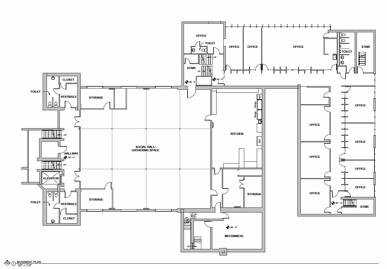
Situated at the corner of E Franklin Avenue and 26th Avenue S, this 26,670 SF church and educational facility sits on a 31,234 SF site that includes a surface parking lot and outdoor space. The building offers a unique combination of architectural character and functional flexibility, including a mid-century modern education wing with separate exterior access and interior connection to the main church. With generous gathering areas, built-in offices, and multiple entry points, the property is well-suited for adaptive reuse or reimagining by mission-driven organizations, creative users, or community-based institutions seeking visibility, presence, and potential in a vibrant urban setting.












.avif)