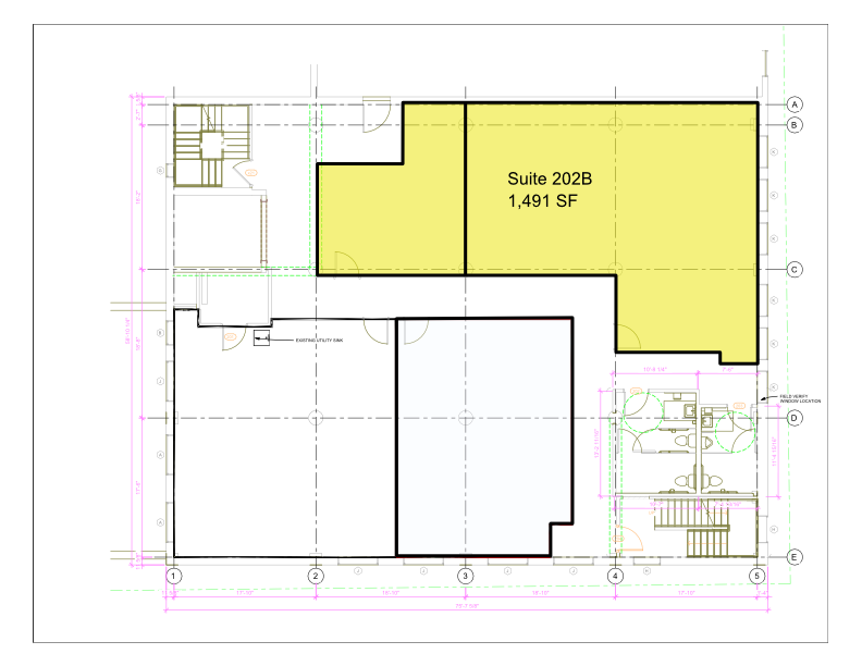
Creative second level studio / maker space with skyline views
  • Flexible layout options with separate private area
  • Heritage brick and concrete construction
  • Wall of windows with views of Minneapolis skyline
  • Common floor restrooms
  • Off-street parking available
No items found.

Estimate Your Monthly Rent

Thank you! Your submission has been received!
Oops! Something went wrong while submitting the form.
Estimated Rent Payment: $0.00 per month
Disclaimer: This rent amount is only an approximate estimate, the final amount depending on the negotiated term and other provisions of the lease contract.
West River Arts Building

Interested? Contact Us!