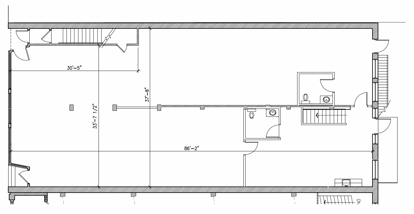
Part of a full block of local establishments, this three-story brick building gives tenants a distinctive presence alongside complementary retailers, complete with a rear surface parking lot. The available inline retail space features a blend of polished concrete in the front, hardwood flooring in the back, and consistent track lighting throughout, creating an open and adaptable layout, with the opportunity to subdivide. Two rear entrances provide direct access to the space, including the back staff room featuring a kitchenette, restroom, and entry to the entire basement floor. Along the glass storefront, two separate entrances enhance ADA accessibility and offer prominent visibility, affording stunning views of the Basilica of St. Mary.










%202.avif)

