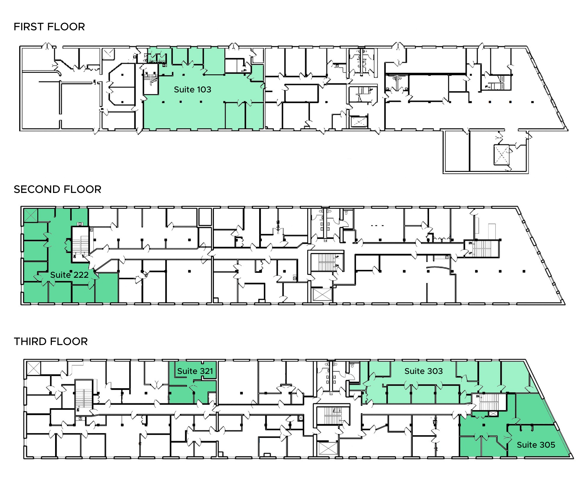
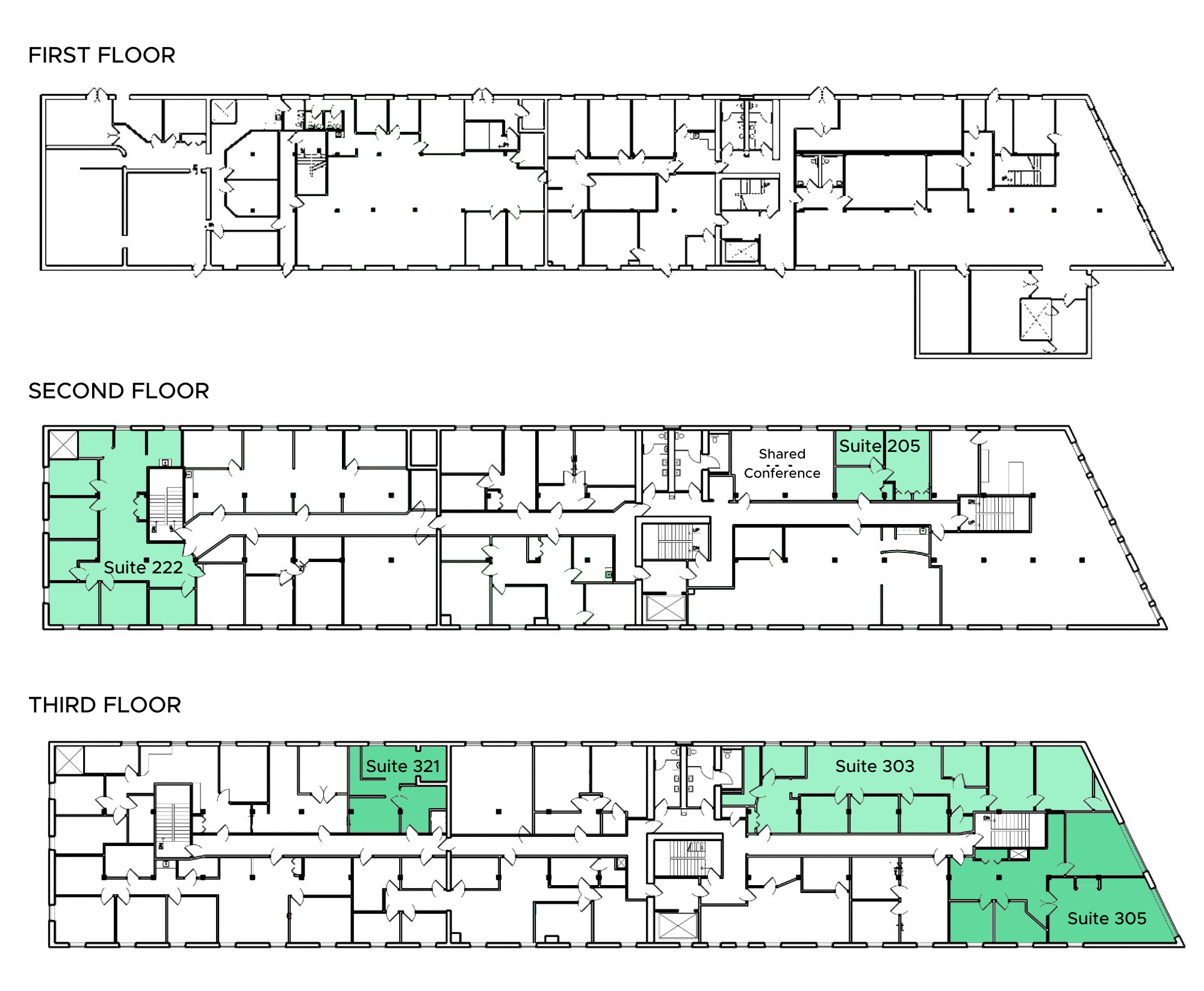
Ivy League Place is a historic gem in St. Paul, offering immediate occupancy within the building. Under the attentive care of local professional ownership and management, this brick & timber renovated building features numerous move-in read suites with existing offices and IT wiring. Enjoy amenities like a common conference room, kitchenettes in select suites, expansive exterior views, and free surface parking. With a sprinklered structure and hi-tech building access, Ivy League Place is home to a diverse array of neighboring tenants, from legal and nonprofit organizations to counseling services, clinics, tech firms, and construction companies.





























%202.avif)