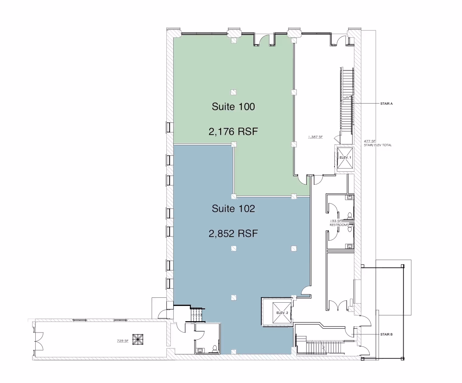
Creative restaurant or retail space in historically renovated building in the North Loop.
  • Floor to ceiling windows with unique concrete beam 17' ceiling
  • Original terrazzo floors and exposed brick
  • Shower, locker area, and roof deck access for employees
  • Skylights and light wells
  • Includes grease duct and MUA duct for potential restaurant
  • Option to combine with Suite 150
No items found.

Estimate Your Monthly Rent

Thank you! Your submission has been received!
Oops! Something went wrong while submitting the form.
Estimated Rent Payment: $0.00 per month
Disclaimer: This rent amount is only an approximate estimate, the final amount depending on the negotiated term and other provisions of the lease contract.

Interested? Contact Us!